自己世华泊郡的工地前段时间刚刚开始施工,昨天去现场看看拆除情况,顺便水电交底,拆的还是挺干净的,客户水电是局部改,所以保留了原有的电路,三居两卫加一个书房如果全改,费用确实挺高的,业主刚买完房,工长拿摇表检查了每一路电线还都可以用,原有的卫生间厨房的电线也都还规范,这样省了一大部分钱,希望装修的朋友如果水电不想大动的情况下,一定要检查原有的线路是否规范,不然装修完以后家里很有可能老是跳闸哦🙄










自己世华泊郡的工地前段时间刚刚开始施工,昨天去现场看看拆除情况,顺便水电交底,拆的还是挺干净的,客户水电是局部改,所以保留了原有的电路,三居两卫加一个书房如果全改,费用确实挺高的,业主刚买完房,工长拿摇表检查了每一路电线还都可以用,原有的卫生间厨房的电线也都还规范,这样省了一大部分钱,希望装修的朋友如果水电不想大动的情况下,一定要检查原有的线路是否规范,不然装修完以后家里很有可能老是跳闸哦🙄
#高端的食材往往只需要简单的烹饪 #吃货的世界唯有美食不可辜负 #医疗美容 #夏限定 #0元玩转这座城 #同城美容护肤 #医美那些事儿 #我的医美体验分享 #我要变美变好看 #让我们一起变美 @点小胖 @点小购 正是因为有了各种各样的人,这世间方是世间。别人自有价值观和与之相配的活法,我也有自己的价值观和与之相配的活法。
就在北京路📍 人均20+💰吃到美味的日式小吃 现点现做!料超多的大阪烧真的爱了🤤 - 🧀芝士脆皮肠大阪烧 芝士控好爱!一口咬下去满满芝士拉丝,香肠的Q弹口感配上大阪烧的酱料,那味道真的绝了! - 🧀芝士瀑布章鱼烧 新鲜的章鱼搭配厚厚的芝士,咬上一口,都是章鱼的鲜美和芝士的香浓,真的超级满足! - 🦀帝皇蟹棒大阪烧 帝皇蟹棒鲜嫩多汁,大阪烧做法简直美味到炸裂!外焦里嫩,香气四溢~ - 🍋紫苏柠檬茶 柠檬茶融合了紫苏的独特香气,口感清新怡人,好好喝。 · 📍 大阪叔叔PLUS·Taco大阪烧(北京路店) - #广州吃喝玩乐 #大阪烧 #我的美食日记#妈呀太香了 #广州美食 #全球吃喝小分队 #北京路美食
来北海一定要试试这家的糟粕醋!很鲜香!酸度辣度刚刚好!开胃极了! 上来的海鲜拼盘,真的好新鲜!涮上糟粕醋汤底特别的鲜嫩,好香好香! 她家的疍家黄花鱼酥酥脆脆的很香,挤上金桔很爽口! 🏠:琼大糟粕醋 #北海#北海美食#北海旅游攻略#本地人都爱吃的店#糟粕醋#美食推荐#北海美食攻略
熬啥?熬应该就知道了吧!熬猪油,整个屋子都充满着猪油的香气。喜欢一些青菜加点猪油很香。烧汤也喜欢加点,比加其他调料香多了。熬完油的油渣可不要扔掉,炒菜烧面条都可以,很香,比肉肉的口感更独特。你要不要也来试试?
今天第一回和同事一起来到北平盛世品尝美食,总共点了9个菜和一个汤,分别跟大家说一下本次的体验情况 9个菜中4个菜里都配了虾仁,虾仁个头挺大的,但是感觉不到他的Q甜弹,不知道为什么每个菜都要配虾仁,不知道是啥创意[捂脸],菜品的口感也一般般,没有特别突出的创新,另外还有一个虾球汤,虾球是合成的,用虾仁和面粉合成的,吃的虾球明显的感觉面粉多,虾仁少,在这9个菜中让我推荐,我推荐烤鸭的味道还可以,虽然味道一般,但是份量挺足的,如果团队聚餐只追求量不追求质的话,可以去北平盛世[愉快]
足不出沪也能吃上见手青了!! 现切的见手青还会变色好有意思 鲜香的土鸡菌汤也喝上了!! 滑嫩的鸡肉,鲜美的汤底,一口气愣是喝了好几碗。。。 喝完鸡汤就可以下各种配菜啦 雪花M9和牛、姜柄瓜、水性杨花、高原彩色土豆等等 把想吃的全都安排上了!一整个大满足! 还有带着点焦香米粒的宣威火腿牛肝菌焖饭和咸甜的大包子 夏天不能缺少的冰饮也得安排上!! 冰冰凉凉的配火锅可太巴适了~ #又是一年吃菌季 #夏天来吃菌子啦 #创作者赏金计划 #优质笔记萌芽计划
今日分享满足热爱生活的你!
客餐厅的贯通让室内动线流畅,不受阻碍,餐厅延续着与客厅色彩相呼应的橘色,同时金属元素的融入,为空间增添更多奢华之感,精巧的餐具与流苏吊灯皆为餐厅营造出具有仪式感的用餐氛围。 香怡可口的晚餐被端上餐桌,一家三口共同分享着美食,讨论着新一年的愿望与目标;家容纳着居住者的日常,也承载着一家三口的梦想。 在慵懒的下午,沏一壶香味四溢的清茶,倚坐在窗边,让阳光轻洒入室内,勾勒出了一幅惬意悠然的生活景象。 主卧位于与客厅相连的走廊尽头,确保了居住者拥有独立的私密空间,同时不易被打扰。卧室内延用白灰色主调营造出简洁且柔和的格调,穿插的橘色使空间更为静怡,在安静的夜晚氤氲出丝丝睡意。 不同于其他空间的安静雅致,女儿房用粉色为主题打造了一个活泼的童话世界,造型独特的云彩吊灯,圆润可爱的座椅都为空间增添了趣味性。旁边安置了储物柜,用来收纳女儿的衣物和玩具,还予空间秩序与自由。 次卧床头边设立有足够储物空间的衣柜,满足了居住者对于衣物等必备用品收纳的需求。夜幕降临时,在床头灯旁阅读一本枕边书,聆听内心最真实的话语,感受内在的平静,任由睡意柔缓习来
装修指南
顶上的一排白色桶状射灯,照亮整个空间,带有时尚的艺术
顶上的一排白色桶状射灯,照亮整个空间,带有时尚的艺术气息。玄关处不增加复杂的装饰,视线直通客厅,宽敞又明亮。白色的空间里加上淡蓝色、原木色等,让原本白得空洞的空间里感受到温暖,不用刻意的装饰品来修饰房间,让整个空间看起来清新自然。
ins美好生活
独栋别墅的狂野现代简约风格 低造价的高级风
之前跟大家盘点过如果预算不是很高,可以选现代简约 现代简约不代表简单 可以造的很高级 本案550万全案价,900平方米的独栋别墅 ⭐空间明亮 ⭐没有过多装饰,精心挑选过,空间就不会觉得空 ⭐造型上可以做的夸张一点,会提亮整个空间 ⭐设计上大胆,灵活,每个空间都有自己的特色 ⭐善于运用外景,借天光,为房子内部增色 拥有一个优秀的设计师,那你就可以拒绝一个平庸的家,别墅装修值得更好的
常州星杰别墅装饰
140平中式装修,轻盈舒适
流畅的中式风格线条,搭配柔和光线,肉眼可见的舒适大气。 加入现代元素的新中式style,以灰色、姜黄色、米色、木色、灰色、白色搭配,打造时尚雅致的客厅风采。 沙发北极景墙的水墨中式挂画,恰好点亮了一片素白的墙面。 打通客厅与阳台,打造一个舒适休闲的品茶、看书、招待朋友的多功能区域。 [玫瑰][玫瑰][玫瑰][玫瑰][玫瑰] 别墅装修!别墅设计! 豪宅装修!豪宅设计! 别墅整装!全案设计!
芰荷
北欧风已过时?现在流行“糖系”了
糖系是什么? 两个字总结糖系家给人的感觉——治愈。它温暖而安稳,柔和中带着甜美,像一块古方糖,随时能给疲累的生活带来甜味。 说到糖的话大家很容易联想到公主风、马卡龙色系。可能更适合恋爱中的少女。真正的糖系,是综合了北欧风和日系风的一种家装风格,相较于干净清爽、简约中性的盐系风,糖系风会更加温柔治愈、安稳温暖。 糖系元素一:大片彩色 糖系的彩色可不是大红大紫大绿,莫兰迪这颗高级糖,就非常适合甜甜的糖系。增加色彩点缀。糖系的墙面、地板、基础家具其实都可以很平庸,但是一定会有色彩点缀。 糖系除了更丰富的色彩外,往往会选用带有一定的怀旧感的颜色,这种颜色温柔且饱和度低,会给人温暖安定的感觉。用本本的话来说,糖系会流行起来,并且这么多年都没有在潮流中消失的最大原因还是这个:舒压。糖系的颜色可以让人平静。 就像很多用户在留言里说,回家根本不想看到什么冷冰冰的东西。这种丰富而柔和的色系经过研究证实,真的可以减轻愤怒,激进,埋怨,还有被遗弃和被忽视的感觉。
住范儿一站式高颜值家装
北欧风格与装饰艺术风格、流线型风格等追求时髦和商业价
北欧风格与装饰艺术风格、流线型风格等追求时髦和商业价值的形式主义不同,北欧风格简洁实用,体现对传统的尊重,对自然材料的欣赏,对形式和装饰的克制,以及力求在形式和功能的统一;在建筑室内设计方面,就是室内的顶、墙、地三个面,完全不用纹样和图案装饰,只用线条、色块来区分点缀。 在家具设计方面,就产生了完全不使用雕花、纹饰的北欧家具,实际上的家具产品也是形式多样。如果说它们有什么共同点的话那一定是简洁、直接、功能化且贴近自然,一份宁静的北欧风情,绝非是蛊惑人心的虚华设计 将游牧民族的热情血脉与自然灵感相融合,摒弃蛊惑人心的虚华设计,追求自然的艺术智慧与灵感,讲究以人为本,把注重舒适体验度放在首位,风格简洁、直接、功能化且贴近自然,多体现生命力多维度工业艺术品。 回归自然,崇尚原木韵味,外加现代、实用、精美的艺术设计风格,正反映出现代都市人进入新时代的某种取向与旋律。 设计在家具王国里堪称经典;瑞典人善于制造摩登;芬兰人翔动着自然灵感;挪威人崇尚厚重与质朴。他们在风格上有其共性的一面,但也体现着不同的个性。 木材是室内装修的灵魂。上等的枫木、橡木、云杉、松木和白桦是制作各种家具的主要材料,它本身所具有的柔和色彩、细密质感以及天然纹理非常自然地融入到家具设计之中,展现出一种朴素、清新的原始之美,代表着独特的北欧风格。 一把椅子,一张沙发,设计不仅仅追求它的造型美,更注重从人体结构出发,讲究它的曲线如何与人体接触时达到完美的结 合。 它突破了工艺、技术僵硬的理念,融进人的主体意识,从而变得充满理性。
船
惊才绝艳的建筑师,设计了全球最美建筑4
水泥厂的家[调皮][调皮][调皮] “我喜欢漫步在工业废渣场和这片无人地带,这里的城市四分五裂,古老的砖砌烟囱点缀着田野和混凝土块之间的无政府斗争。” 水泥厂成为建筑师Bofill的家和工作室,Ricardo Bofill 与水泥厂的第一次接触发生在1973年。 1973年ricardo bofill发现了一个废弃的水泥厂,一个由30多个筒仓、地下画廊和巨大的机房组成的世纪之交的工业综合体,他决定把它改造成taller de arquitectura的总部。 无处可爬的楼梯,没有支撑的强大钢筋混凝土结构,悬挂在空中的铁块,巨大的空间充满了神奇的元素。透过这个庞大建筑群的混凝土肌体,我们可以看到在水泥厂的指定功能之外,在La Fábrica的魔法下发掘出的新生命力。 该空间灌输哥特式的灵性感,建立在粗糙的野兽派结构上,住宅补充了工作空间,满足了Ricardo Bofill将La Fábrica视为一个生活和反思的地方的最初愿望。 [玫瑰][玫瑰][玫瑰][玫瑰][玫瑰] 别墅装修!别墅设计! 豪宅装修!豪宅设计! 别墅整装!全案设计!
鱼落圈
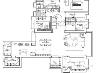
房子的设计规划的空间很大
本案是由我们钟百松和冉成两位设计师一起为客户进行的设计服务,房子实用面积200多方,房子的设计规划的空间很大,两位设计师实地看了房子现场后有不少创意设计的想法,通过深思熟虑,在空间格局上的规划,尽可能实现功能与美学的统一。 两位设计师将侘寂+极简+日式融合的是时尚混搭风,同时也加入了不少简约风格的元素,用最朴实、纯粹、轻盈的材质与素、简、自然,不带一丝娇艳的中性配色赋予宁静的侘寂氛围,将业主喜爱的风格统一诠释在这个房子里,让他们未来生活的每一个时刻都能安逸、舒适。
007d