40岁大叔把客厅去掉,装修成极简新中式,新家静谧又美好,喜欢
40岁大叔把客厅去掉,装修成极简新中式,新家静谧又美好,喜欢
40岁大叔把客厅去掉,装修成极简新中式,新家静谧又美好,喜欢
40岁大叔把客厅去掉,装修成极简新中式,新家静谧又美好,喜欢
40岁大叔把客厅去掉,装修成极简新中式,新家静谧又美好,喜欢
40岁大叔把客厅去掉,装修成极简新中式,新家静谧又美好,喜欢
40岁大叔把客厅去掉,装修成极简新中式,新家静谧又美好,喜欢
40岁大叔把客厅去掉,装修成极简新中式,新家静谧又美好,喜欢
40岁大叔把客厅去掉,装修成极简新中式,新家静谧又美好,喜欢

40岁大叔把客厅去掉,装修成极简新中式,新家静谧又美好,喜欢

2022-10-12 11:20:38
阅读0
评论0

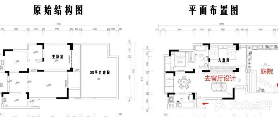
上星期与几个同学聚了一下,聊着聊着就说到房子装修的问题,大多数人都是在抱怨,不是说家里的插座留少了,就是说功能没有规划好,而说得最多的是,他们认为家里最没用的空间就是客厅,这并不让我感觉到惊讶,在现代生活里,客厅的会客功能是在不断减弱,如果还把客厅按传统的装修来布置,家里最大的空间真的就浪费了。

所以现在就有很多人选择“去客厅”设计,让这里成为与家人之间互动交流的空间。本期我要给大家带来的案例:一位40岁的大叔,在装修新家的时候,同样去掉了沙发与茶几,改用大长桌,再舍弃电视背景制作成储物柜,将生活物品统统收纳,让家里多了几分整洁,素雅的现代新中式风格,那氛围真的是安静质朴,非常大气。

这位大叔买的还是第一层的房子,原因就是还带着一个30平方的庭院,面积快有房子一半大了,室内面积79平方,两室两厅的结构,满足一家人的生活作息。在做功能布置的时候,大叔非常明确,要让空间满足日常生活的前提下,还要有安静质朴的美感,因为家里有两小孩,最终他把主卧室与小孩房互换,并把客厅改造成会客与书房兼顾的空间,堪称完美!

热门点评

「琼二海鲜糟粕醋(椰梦长廊店)」经常来三亚的朋友推荐的 说是椰梦🌴长廊边上必吃榜 不吃绝对要后悔 到三亚就迫不及待的赶来了 - 进门就能看到各式各样的鲜活海鲜🦀 现点现做 明码标价 看得见的鲜活 感兴趣的话还可以自己上手🤲捕捞 但是一定要当心[爱心] 活蹦乱跳的海鲜可是相当生猛哦 - 🔥糟粕醋火锅 一定要点 酸酸辣辣的超开胃 🈶点冬阴功的意思 🉑以先喝上一碗汤再煮上各种海鲜🦐和蔬菜 那滋味 简直不摆了 - 🔥海鲜拼盘 糟粕醋最佳搭档 海南的特产就是海鲜 超大一盘 鲍鱼 宝石鱼🐟 生蚝 扇贝 墨鱼仔 虾虾🦐串在签签上都还在挥舞小爪爪 肉眼可见的新鲜 - 🔥避风塘炒蟹 咱也不知道是啥蟹🦀 反正好吃就完了 螃蟹🦀肉多肥美 焦香焦香的 壳很薄 感觉我能连壳一起嚼了 好吃到哭[流泪] - 还有颜值超高的绵绵冰 非常绵密 入口即化 加了红豆和时令水果 太解暑了 一定要去试试 不然三亚之旅一定会落下遗憾 吃完步行过马路就🉑以去海边玩水啦🌊 妥妥的吃喝玩乐两不误

终于来打卡了, 心心念念的这家土蚝金竹笼蒸蚝·东北烧烤, 他们家的网红-高压锅竹笼蒸蚝生蚝, 我可是馋很久了呀。这次有口福了。 - 刚进店就把招牌给点上了,我感觉蒸的方式还蛮特别的,吃起来特别的鲜甜,沾上蘸料之后一口下去,简直太赞了,而且我感觉他的肉是比较QQ弹弹的那种。 - 精酿啤酒 作为一个不爱喝啤酒的女孩子, 这款精酿啤酒很能接受,味道有点果酒的味道 对于女孩子而言比较好入口,推荐尝试 - 然后还有小黄鱼-感觉很脆很香。 · 羊肉大串儿-没有一点羊膻味,满口肉香味道,很有嚼劲。 · 还有油炸花生米,一个个吃起来真的是脆香脆香的。 - 绝味毛豆,还有黄瓜,吃起来都不错的, 最主要的就是这家店挺大的, 特别的显眼,位置还挺好找的,服务态度也挺好。 - 总体来说是一次不错的体验呀,没有踩雷。 想要大饱口福的朋友们,可以来尝试一下。 - 地址: 上梅林梅华路与中康路交口民浩楼一楼101 店名: 土蚝金竹笼蒸蚝·东北烧烤(梅林店)

今日介紹的是平民晚餐[调皮]大圍鹽水雞, 剛好經過此地,發現新開了一間台灣美食小食,便內進試試, 出乎意料竟然是超便宜,二人餐只需要$108,包括鹽水雞一份,配三款配菜小食,之後有飯或麵選擇,另包括飲品[呲牙] 味道方便是跟台灣的鹽水雞相似,而且做得不錯,推介[偷笑]「ET盐水鸡」

👀大理是一个能让你抛下一切不愉快,停下脚步品味人生的地方。如何品尝到大理的美食,就让我来介绍吧! 🌸店名:大理方舟胖子•我在大理等你店 🛣地址:人民路下段498号(东玉街与人民路交叉口西南角) ❤一进店就闻到了一股浓浓的菌汤味,让人如沐春风,食欲满满,毫不夸张的说,有一种马上冲上去喝一碗的冲动! ❤我和朋友最喜欢他家的套餐 野生菌锅汤,野生菌”,是大自然雨季过后,给我们留下来的最佳礼物。 ❤跑山鸡汤锅搭配黄罗伞菌、竹荪菌、牛肝菌、鸡肉。 服务员把汤锅上来后,会先帮我们下菌菇,会有一个漏勺,大约十分钟后就能吃了。 吃菌汤锅的顺序是:先喝汤,再吃菌,最后涮菜和肉 ❤冷菌菇在鸡汤的调和下,口感滑滑的,脆脆的,味道相当鲜美。 ❤五花肉爆松茸 这是一道我非常喜欢的菜,真的很下饭!采用大理新鲜的五花肉,爆炒一下新鲜的松茸,简直棒极了!

周末到观音桥和朋友逛吃,吃的太多,眼花缭乱,因为带了娃儿。干干净净的环境是首选。 观音居~名字特别,看到说10几年老店了。看到停车也方便~ 菜品种类也黑多!辣的不辣的都有,大人小孩都照顾到了。 「蒜蓉生焖虾」推荐这个,小朋友很喜欢,吃了两碗饭[偷笑]蒜香又不辣口,满意,不得不说每道菜量都很足。 「糖醋锅包鱼」这个菜建议趁热吃,外焦里嫩,外面包裹一层酱汁,香~[调皮]

最近超级火的爷爷自在茶我竟然在吴江也发现了!而且dp上还各种浮力!9⃣️.9⃣️r就能买到新品简直太香了吧!  竹蔗马蹄米乳茶 用新鲜的马蹄和牛乳制作而成的,一口下去可以感受到浓郁的米香,香甜又清爽!里面的马蹄粒和脆波波也好好吃!  爆汁三柠芭乐茶 酸酸甜甜的口感谁能不爱!闻起来还有淡淡的有柠檬香🍋!选用红心芭乐制作而成!必须冲! 🏠:爷爷自在茶(吴江万宝店)

推荐阅读

又美又香的家具店 太迷人了

 coznap | 迷上中古家居的开端 以前不在意家居布置,直到看了《丹麦一年快乐调查报告》这本书说北欧人多注重生活品质,从沙发抱枕到餐椅到食物,任何生活细节都能带来心理上的舒适,所以我也慢慢开始思考整理家居了~ 很久以前在🍑上找到coznap、最近还参加了NychairX 的活动,这品牌给人感觉很亲切又踏实,到店里也是这样的氛围🥰 我就算家居小白、啥品牌都不懂也没关系,听说五月中还会办野营⛺️ 我感觉这是一家超级宝藏店铺呀! 太多美丽的桌椅、画、玻璃器皿等等,空间还用了观夏的香氛石(第一次闻原来味道这么好!)整家店三层楼,东西多却不拥挤,满满的家居灵感泉源!

对面的女孩
3583
81
又美又香的家具店 太迷人了

镜子顶部安装了灯带照明 门边极简的黑色线条晾衣架结构

公寓内所有门均通顶至天花 在视觉上增加空间高度 墙体转角处放置圆角矩形木制换鞋凳 在灰白色墙面、天花及地砖的 衬托下更为凸显 起居空间整体呈沉稳色调 其中电视储物墙与餐厨设备墙 一体成型,占据一侧墙面 保证充足收纳 🌹🌹🌹 别墅装修!别墅设计! 豪宅装修!豪宅设计! 别墅整装!全案设计!

Hoooward.
8119
15
镜子顶部安装了灯带照明 门边极简的黑色线条晾衣架结构

这是一个三口一家的一居改两居,期间经历了疫情

这是一个三口一家的一居改两居,期间经历了疫情,当时公司空无一人所以一直都感恩这对父女,颜色大胆的运用让整个空间都幻若想象,又重新隔出一居给父母住,即开即合,阳光☀️都不影响,通风动线都很开阔,下一步是软装都安装妥帖再来分享。

海洋
6781
60
这是一个三口一家的一居改两居,期间经历了疫情

大东公社—北漂夫妻努力奋斗在北京安家啦!

「金典装饰」一对外地夫妻,共同在北京拼搏,通过自己的努力购买了第一套属于自己的房,他们对这套房子的装修比较注重,希望既能节省成本又能达到他们希望的效果,毕竟买完房子积蓄已经所剩无几。入户门左边做一组鞋柜,家庭必备,玄关用金属隔架做软隔,在上边放置一些绿植,显着生机勃勃;沙发背景墙以蓝色做背景,应为家里有一个男孩,希望更贴切男孩的审美,客厅比较小,电视墙就不做复杂的造型墙了,简洁明了。餐厅采用大理石桌面的桌子更大气奢华,餐桌旁边增加一个酒柜,存放男主人的酒品;男孩房整体采用淡蓝色墙漆,主卧室衣柜做成顶天立地,尽可能增加利用率。

设计师小金
5305
25
大东公社—北漂夫妻努力奋斗在北京安家啦!

490平豪宅设计,满满高级范

公寓在现代极简主义得基调下又融入了优雅与复古元素,丰富了公寓整体的细节,为居住者营造出低调轻奢的舒适感觉。随处可见的装饰画与水晶吊灯为空间增添了别样的艺术美感。 客厅中,设计师选用深木色作为空间的主要配色,营造沉稳轻奢的空间氛围。浅灰色的棉麻沙发搭配深绿色的绒面椅,形成了材质与色调上的对比,在保持和谐的同时又具有丰富性。木制墙壁搭配落地大窗,提升了空间的整体质感 [玫瑰][玫瑰][玫瑰][玫瑰][玫瑰] 别墅装修!别墅设计! 豪宅装修!豪宅设计! 别墅整装!全案设计!

芰荷
9004
74
490平豪宅设计,满满高级范

卫生间这样设计,横竖都是美

卫生间这样设计,横竖都是美! 卫生间是房子最隐秘的场所,也是重要的组成部分之一,容易潮湿比较阴暗 相比卧室客厅在装修时不会特别注重考虑美观程度,一般都以实用为主 现在年轻人对生活品质越来越高,那么在卫生间的设计上怎么才能兼顾到舒适,时尚,有个性 1.瓷砖:由于卫生间要考虑到水以及潮湿防滑清洁。以瓷砖为主,选择一款合适的瓷砖,还可以满足实用以及美观性,除了在花纹.款式上做选择,颜色也需要精心设计 2.洁具:一个卫生间的是否美观好看,从洁具上也能直接提现出来,独特的洗漱台和精致的浴缸也能为颜值加分 最后摆放绿植装点配合充足的自然光线 为了满足今后数年的居家生活需求,我们可以充分利用立体空间,小本之前建议过的卫生间收纳,例如在坐便器上方设置储物架,洗漱台上方设计壁挂,下方设置储物柜等,只要设计合理,完全不用担心显得拥挤

村头一枝花
5581
73
卫生间这样设计,横竖都是美

美到窒息的家,是你向往的没错了2

巴塞罗那一座19世纪的联排别墅,带有自然的乡村风格。这座位于巴塞罗那的住宅是19世纪早期由农民建造的,时至今日仍散发着乡村风格的气息。[种草][种草][种草] 室内设计师Dacum Marta Tobella买下了这座让人感到惊艳的房子,并希望保留它原有的许多细节。室内装饰采用典型的地中海风格,大量使用白色和天然材料,再加上建筑的原始结构,演绎了一个美妙的乡村风格的城市住宅。 [玫瑰][玫瑰][玫瑰][玫瑰][玫瑰] 别墅装修!别墅设计! 豪宅装修!豪宅设计! 别墅整装!全案设计!

鱼落圈
5038
15
美到窒息的家,是你向往的没错了2

装修的重要两个技能,快来get!

[🏠设计]#装修# 整体选用淡色会让房间更干净 一个家庭装修第一重要就是实用,有超强的储蓄空间,归纳起来也不会很乱。所以设计了很多柜子,用设计把柜子与空间材质很好的融合在一起,形成整体性。 想要和电视剧一样的感觉?灯光是一个空间渲染氛围的元素,利用点光源来均匀分布照明,同时满足了灯光的艺术效果,让家看起来更有味道哦~ 一个家庭的装修完全就是代表这个主人的审美! 想要高级感?快get起来吧!

多喝水少生气
3629
70
装修的重要两个技能,快来get!