简洁和实用是现代简约风格的基本特点。让人感觉舒适和恬静,适度的装饰是家居不缺乏时代气息,使人在空间得到精神和身体的放松,并紧跟着时尚的步伐。
在餐桌的墙面上摆放一些装饰画,以至于增加餐厅的情调,餐桌上的绿色植物,则起到了画龙点睛的作用,让环境也充满了生机和活力。
十分间接地规划与设计整体采用相近与肉色的淡雅颜色,走进卧室那时起,就得到了很好的放松。从小细节中的变化,又让卧室显得特别。






简洁和实用是现代简约风格的基本特点。让人感觉舒适和恬静,适度的装饰是家居不缺乏时代气息,使人在空间得到精神和身体的放松,并紧跟着时尚的步伐。
在餐桌的墙面上摆放一些装饰画,以至于增加餐厅的情调,餐桌上的绿色植物,则起到了画龙点睛的作用,让环境也充满了生机和活力。
十分间接地规划与设计整体采用相近与肉色的淡雅颜色,走进卧室那时起,就得到了很好的放松。从小细节中的变化,又让卧室显得特别。
🌾以前经常在公司附近的日月光吃肥汁米蘭,还没到饭点就排起了长队… 最近家门口环宇城MAX终于开业,晚上走几步路就能吃到俺的地道港味米线🥺幸福住了! 「招牌炸酱小锅米线」🍜是每次必点的,☞食神推荐就是赞~ 老火煲制 12 小时而成的高汤特浓郁,还可以自选辣度酸度,搭配㊙️制炸酱…回味无穷,还有丰富的腐竹、大块火腿、S 形红肠🤤用料是实在的 炸鱿鱼须🐙香香脆脆好鲜嫩~浇了酸甜酱汁超入味,还有更多上新小食等待解锁[色] 把「咔汁鱼皮」浇头泡在汤里简直一绝,解锁新吃法~吸饱了酸辣汤汁味儿更浓🤤 店铺:肥汁米蘭香港米线(真如环宇城店) 地址:铜川路699弄1号真如环宇城MAX购物中心负二层B2029号 营业时间:10:30-21:30 #好吃不贵经济实惠 #妈呀太香了 #这一碗好过瘾 #真材实料才能做出好味道 #环宇城 #好吃的米线推荐 #来碗热腾腾的米线 #人人都是美食家
打卡上海外滩,东方明珠白天看还挺一般的,晚上看灯光作用下确实挺好看的,外滩这边建筑都好有个性,哥特式风格,很有感觉,然后这边人真的巨多,出动了很多警察小哥哥维持秩序,虽好看,但并没有想象中震撼感,然后这边吃也巨贵,可能是我太穷了[发呆]「外滩」
以各式卤菜 卤锅为特色的馆子🥢 因为用餐人数只有两个人 所以没有点更多 蹄花爱好者必点一份卤蹄花 肉质Q弹 卤味香也渗透进最深处 一口一口胶原蛋白 炸茄盒比一般曾经吃过的店里的要更大块头 表皮也更酥脆 配的蘸料更是有带蒜香的泰式甜辣风味 是自己偏好的那一口了😉 肥肠和干锅星人也必须不放过干锅肥肠的尝试 虽然没有太过惊艳的味道 但凡是看到菜单上有它就忍不住要点 特色的卤味锅怕吃不完没有点 这次就留作下次的期待[调皮]
要想身体好,就要多吃芦笋,这个季节又是吃龙虾的时候,于是就有了芦笋炒鲜虾仁这道菜。 材料:芦笋,鲜虾仁,生抽,盐 步骤: 1.芦笋洗干净,切成段待用。 2.买剥好的鲜虾仁,洗干净,待用。 3.锅里放油,待油热后倒入芦笋,虾仁一起翻炒一会,加生抽,少量开水,尝一下咸淡,加少许盐,炒一下,装盘。 备注:虾仁也可以用蛋清提前裹一下,会更嫩,虾仁炒的时间不要太久,不然肉会老。
#0元玩转这座城 万象城负一楼新开了一家冒菜店,从%咖啡旁边的扶梯下地下一楼,进门直走20米就能看到这家店。 蔬菜和荤菜种类很多,自选称重,有五种口味可选,最推荐这个招牌红油麻辣味!很香很好吃!! 小料和冰粉都是无限畅吃!!一口气炫了三🥣🥣真的是很好吃~~#艾特你的饭搭子请你吃
#0元玩转这座城 黄姐吃了很多次,每次都不满意,搞不懂为啥子楞个火! 今天来试试黄建彬!看黄家姐弟哪个赢? 锅底默认微辣, 我和朋友一致认为太淡了,起码要煮一个小时才进味!本地人建议直接上中辣! 菜品品种比较丰富,质量也还行吧, 表扬[强]牛肉、苕粉、南瓜、鸭肠、滑肉、海带苗 品质都还不错。 其他菜品或多或少都有点儿问题,腊排骨有异味,发鱿鱼口感很粉,藕片不新鲜。 整体吃下来感觉中规中矩吧
木饰面,让家美的更有腔调!
[糖果]客厅落地玻璃让整个空间明亮通透 灰色沙发搭配橙色单人沙发 带来了别样的色彩与温度 角落里的伊姆斯休闲椅 悠闲舒适的同时彰显着屋主的品味 [糖果]电视背景墙下方安装了一个真火壁炉 壁炉上方选用樱桃木饰面 细密的质感柔、舒适的色彩 总是给人带来质朴无华的感觉 [糖果]背景墙另一侧是通高的壁柜 兼具橱柜、书架和衣柜等功能 同时也是分隔不同功能空间的隔断 [糖果]书架旁的小角落也被精心设计过 球星的小吊灯刚好在沙漏型的凳子上方 远处墙上的壁画 恰到好处的带来原始艺术感
1835789xx
整个空间纯粹简单也实用。
折板因为不同高低的层次,可以变成椅子或者餐桌,虽然空间线条简单,但是对于生活的想象空间却很大。 书房用最简单的板与木柜组成,整个空间纯粹简单也实用。 [玫瑰][玫瑰][玫瑰][玫瑰][玫瑰] 别墅装修!别墅设计! 豪宅装修!豪宅设计! 别墅整装!全案设计!
【已注销用户】
160㎡现代北欧,自然舒适的生活,从容不紧的日子
这是一套160平米的复式房屋,整体空间以现代舒适的空间,搭配上北欧自然的家居软装,呈现出一种舒适自然的生活空间感,生活在这样轻松从容的空间里,日子也将会过得恣意自在。 客厅:▲淡灰色的沙发墙带着简洁的线条边框,挂上一幅人像装饰画,搭配一张绿灰色的皮沙发,结合黑白配的大理石茶几布置,让客厅氛围充满优雅端庄的舒适华丽气质。
今朝黑板报
新房终于开始步入正轨了,效果我还是很满意的,很温馨
新房终于开始步入正轨了,效果我还是很满意的,很温馨,而且也充满了现代前卫,经过不断的修改才决定了这个,装修一点点步入正轨,还是挺有成就感的,在装修中,有期待也有失落,精心设计精打细算,各种酸甜苦辣,感谢设计师,也相信自己,虽然家不是最完美的,单绝对是最温馨的
王富贵
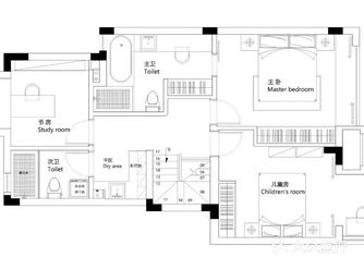
私人区域的入口隐藏在一扇暗门后面,空间由主卧室和更衣
🌵私人区域的入口隐藏在一扇暗门后面,空间由主卧室和更衣室组成。 🌵浴室旁边还有另一个房间,方便以后可以改造成儿童房。 🌵主卫专门为各种目的量身定制,形式简约、艺术感,用色彩、材质去呈现空间的艺术感。 [玫瑰][玫瑰][玫瑰][玫瑰][玫瑰] 别墅装修!别墅设计! 豪宅装修!豪宅设计! 别墅整装!全案设计!
溏心蛋
走进韩国女主的家,真的是享受!全屋物品罗列得有条不紊,太养眼
在看韩剧的时候,我们经常会感叹韩国家居场景太让人向往了,虽然简约温馨,却整洁有序。现实中很多韩国女屋主大多也非常会布置家。快跟着小编的步伐,走进这位韩国女主的家,真的受益匪浅。女主把家布置得精致唯美,物品也罗列得有条不紊,看着就很赏心悦目。 客厅 房间一进门,就被她家干净清爽的家居场面给吸引住了。全屋木质的家居布置,清新又自然,有种回归大自然的返璞归真,让人莫名地爱上。地上铺上一块地毯,一家人就可以随意自由地坐在地上玩耍,日子过得别提多温馨了。电视挂墙的设计,不仅填补了墙面的空白,就连电视柜都省了。绿植的修饰,让整个房间都充满着生机和活力。 女主坚持用简单的物品来布置出高质感的人生,家中处处布置得细致周到,值得我们细细品味和学习。 餐厅 女主每天都会出门购买一些新鲜的花朵,用于家居修饰。随便放在哪一个角落,就充满着浓郁的花香味。女主除了在家居布置上有自己独特的见解之外,对食物的要求也是很高。每一道菜、每一道工序都要求做到尽善尽美,随手一拍就让人有想吃的冲动。 厨房 开放式的厨房设计,在国外较为常见,在她家当然也不例外。不仅打破了传统一屋一厨的设计,还显得更加随意和自由,不会显得太过拘谨和无趣。厨房中,女主每天都会花一两个小时进行整理和调整,只为保持一个干净整洁的厨房环境,自己用着也更加舒心一些。 打开厨房抽屉,真的有让人眼前一亮。每件物品都摆放得井然有序,都有属于自己的区域,看着就很赏心悦目。 阳台 这个区域,不仅可以用于家居收纳,还可以充当晾衣房。空间虽然不大,太太却将空间利用得淋漓尽致。 嵌入式的家居设计,在韩国家庭十分常见。不仅不会占据太多的空间,还能够容纳下更多的物品。打开冰箱,每一个隔层都摆放得有条不紊,值得我们学习和借鉴。冰箱旁的收纳柜设计,也很实用。 卧室 孩子的卧室布置,太太将其布置得有滋有味。简单中透露出一股不凡的气质,超治愈。 衣柜收纳 开放式的衣架设计,看着更加直观和养眼一些。每一个区域都很讲究和整齐,真的很棒了! 卫生间 洗漱台的镜子后,竟然藏了这么多神兵利器,长见识了! 阳台上,养了超多的绿植,十分有生活气息。夏天,阳台还可以成为孩子的玩耍区域,画面温馨无比。 每回看完韩国女主的家之后,都会让我感觉很享受和治愈,这也是我喜欢韩国家居装修的一大原因。虽然不是大豪宅,却处处收拾得井然有序、错落有致,透露着对生活的热爱和满满的生活仪式感。如果你对生活也有一颗热爱的心,相信你的家一样可以这么美好。
住范儿一站式家装颜值革命
设计师在主卧规划了一间衣帽室,一间拥有浴缸的洗浴室
💕住宅的入口处位于下层,通过大理石台阶到达上层生活区,略显封闭的空间设计师通过多盏造型不同的灯饰提升亮度,同时丰富视觉感受。 🌵由于下层入口区域面积狭窄,设计师便将进出门的一些整理需求,全部安排在宽敞的上层空间,木料镶边的穿衣镜与灰色双人沙发,增加了空间的舒适度。 🐬公共区域采用了开放式的布局,无遮挡的设计保证了光线的穿透,而料理区则被“随意”的安置在过道中。 🌸客厅与厨餐厅间利用地面材质的不同将功能区独立,有趣的是,设计师利用材质进行了色彩上的呼应,客厅浅灰色的沙发对应深灰色的餐椅,深色胡桃木元素也使用在餐桌以及柜体上。 🍻一间超宽敞的卧室可以大大的提升居住的舒适度,深胡桃木与白色墙面的搭配,永远也不会过时,在功能性上,设计师在主卧规划了一间衣帽室,一间拥有浴缸的洗浴室,以及拥有弧形玻璃的睡眠区。 🍀室内的第二间洗浴室,深色大理石激发出空间的沉稳与质感魅力。 🌟如果你喜欢的话,请记得点赞收藏哦~🌟
叶尊叶MM
侘寂风公寓,不一样的美
[傲慢]客厅中,电视墙上覆盖着天然粘土,是诧寂风常见的设计,各种看似破旧,实则韵味十足的陈设,透着不一样的气质。藤编的地毯搭配木材,和谐统一的色调搭配木材非常和谐。 [傲慢]厨房和餐厅位于同一空间,开放式布局,将室外光线引入室内,清新而雅致。富有设计感的吊灯,营造了散发着侘寂气息的空间氛围。 [傲慢]卧室的设计依旧在空间中加入了藤编元素与客厅相呼应。极简的床铺设计,营造了一个温馨舒适的休憩空间。 [玫瑰][玫瑰][玫瑰][玫瑰][玫瑰] 别墅装修!别墅设计! 豪宅装修!豪宅设计! 别墅整装!全案设计!
就是很帅