45平米小户型大改造
45平米小户型大改造
45平米小户型大改造
45平米小户型大改造
45平米小户型大改造
45平米小户型大改造
45平米小户型大改造
45平米小户型大改造
45平米小户型大改造

45平米小户型大改造

2022-10-12 10:53:09
阅读0
评论6

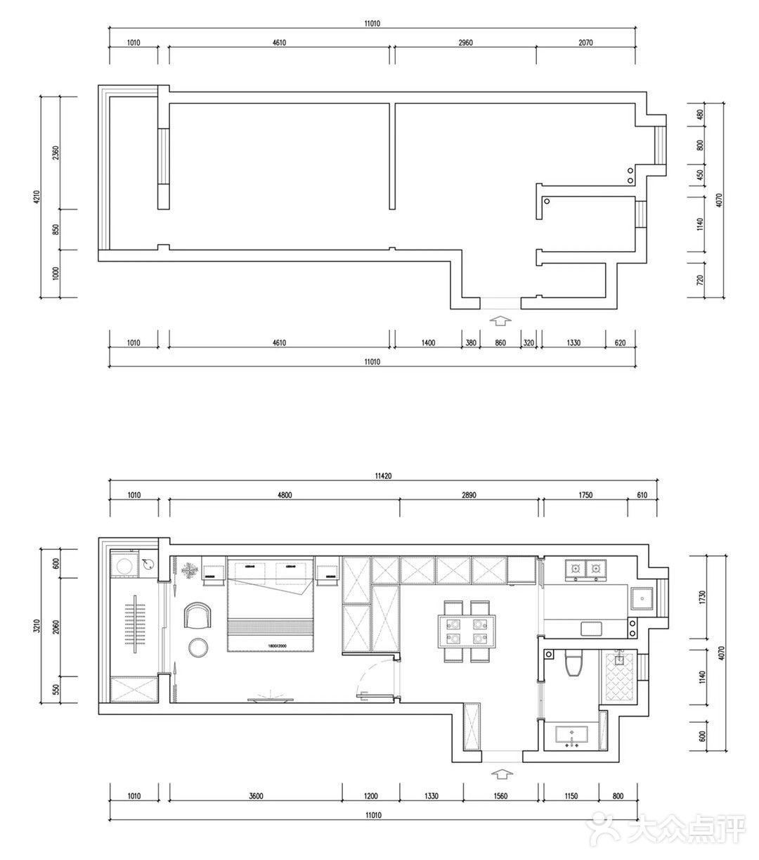
建筑面积45平方,整体翻新🥳

进门处改做到顶鞋柜,左面放了挂壁式全身镜,不占空间😋

非承重墙体全部拆除,布局稍作调整,房间与客厅做了背对背的柜子,一直延伸到厨房移门,大大的增加了储物空间,西面的餐边柜中间是漏空的,可以放微波炉,这样就不用占用厨房空间了,也算得上是一个小西厨了😄

厨房改做U型橱柜,高低台的设计更加符合人体工程学,炒菜不累手,洗菜不弯腰[呲牙]

卫生间扩大后,让原本几乎放不下台盆的空间拥有了一个尺寸非常🆗的洗手台🍊

阳台通了水,将洗衣机放在了阳台,洗衣晾晒在一起,更加方便,另外在阳台再加了一组储物柜,充分利用空间☀️

一厨一卫,客餐厅也有,还拥有一个小阳台[憨笑]整个色调都偏暖色,现代北欧风格非常温馨🥰

评论(5
  • 三思后Buy
    2022-01-15 07:33:27
    同好奇大概预算[微笑]
  • 阿珊超爱吃
    2022-01-14 13:50:28
    这个预算是多少呢
  • A~尛喆
    2022-01-13 01:58:26
    同样这么大房子能满足两个大人两个孩子么?
查看更多评论
二维码
查看更多内容
请扫码下载大众点评App
我知道了
热门点评

人手一份的位上茶歇 既保证了会议的严谨 也有甜点带给人的放松 每一款小甜点的精致和摆盘的精心搭配 都是给这场重要会议最完美的诠释 周到细致的一对一服务 确保用餐的仪式感和尊贵体验 🌟更多有趣的位上餐搭配 一起来说说你的想法吧👏 我们的潜力真的无限![色] #茶歇 #茶歇甜品台 #商务茶歇 #会议茶歇 #北京茶歇 #北京茶歇定制 #单人份茶歇 #单人份茶歇盒 #单人份甜品 #位上茶歇 #单人份会议茶歇 #活动茶歇 #开业茶歇 #婚礼甜品台 #冷餐 #冷餐会茶歇自助餐 #自助餐上门 #年会茶歇 #年会尾牙宴 #年会尾牙宴自助餐

打卡赵露思同款海岸线咖啡馆啦 周末的咖啡馆长满了美女 这里的环境真的好出片 · 一楼二楼还有外场 人再多都不用排队 一杯咖啡就能收获一片海 🌇落日余晖很浪漫 🌃夜景很有氛围感 · 下次见面,一定要选在晴天☀️,穿着漂亮的小裙子来呀👗🎀💃 #五一春日漫游记 #五一小长假出游攻略

我发誓!这是龙华坠好吃的湘菜!姜爆鸡太下饭! 啊啊啊!我已经被不下2个湖南朋友安利这家湘菜馆了,这家宝藏湘菜馆子给我🔥啊!饭点来坐满了人🌶️真的排队也要吃!!本湘菜胃太太太爱了[流泪]连着炫了三碗饭 - ✔️姜爆叫堂鸡 & 滋补鸡汤 第一次吃到这么正的炒鸡,闻着香气就感觉好开胃,鸡肉都嫩嫩的,白木耳也好吃,太下饭了啊啊!一整个爱住!(鸡汤也好鲜好甜!是老广认证好喝的鲜鸡汤🙋🏻‍♀️ - ✔️经典湖南辣椒炒肉 急火快炒!汁水都被锁住了💥肉比辣椒还多!简直是下饭神器直接光盘!干饭人冲冲冲 - ✔️香辣抓排骨 还没上桌就闻到浓浓蒜味,排骨咬起来咔滋咔滋的,里面的肉很弹牙,肉汁横流! - ✔️佛手卷 热气腾腾的湘潭佛手卷!配上姜爆鸡的汤汁也吼吼吃! —————————————————— 🔍湘当爱·特色湘菜(大浪店) 📍大浪街道浪口社区华盛路134号101(大浪义乌对面)

菜式丰富,而且口味很适合大家吃 店里还有针对商务宴请定制的菜品 挺适合聚餐的 装修也很大气,包房很优雅 人均才30,性价比真的不错可 难怪天天人气那么高,天天都坐满人 ——招牌剁椒鱼头才39r!真的值哭了! ✔剁椒鱼头⭐⭐⭐⭐⭐ 现杀现蒸,肥厚紧致的大鱼头上铺了满满一层剁椒,相当入味,又鲜又辣! 最爱吃鱼的腮,超级嫩滑~ +清水面进去,捞上里面的汤汁一起嗦!好吃 →上桌秒空的鲜味! ●农家炒土鸡⭐⭐⭐⭐⭐ 几乎每桌必点 吃起来好香辣 肉质紧致有韧劲 ●小炒土猪肉⭐⭐⭐⭐⭐ 搭配辣椒炒,辣度不会很辣 猪肉吸收了辣椒的香味 真的好下饭啊! ●湘江道的汤⭐⭐⭐⭐⭐ 鲜到掉眉毛!!奶白色的一锅浓汤,用来汤泡饭绝配! ⭐湘江道·剁椒鱼头(棠下店) 人均30 #爱生活爱美食 #真材实料才能做出好味道 #糖油粑粑 #我爱美食 美食爱我 #启动吧!2024吃喝玩乐省钱计划 「湘江道·剁椒鱼头(棠下店)」

作为一个吃货,我分享一下感受,吃不到他家烤肉的我一直在骚动[偷笑],情侣吃饭或者朋友吃饭必备! [强]特色推荐: 位置在裕华万达贤合庄旁边 首先价格并不贵,我们是团的券,两个人128,比我们平时吃的伊茉家要便宜很多。 1.时间:建议大家可以12点以前到,这样不用排队,进去直接搞起来!天冷了,先搞点卤煮暖和暖和! 2.菜品:他们家的菜品还是非常齐全的,各种烤肉、猪排、鸡翅等等,满足你的味蕾,还有生蚝、脑花、扇贝,给我一种全场都有赵公子买单随意吃的感觉[呲牙][呲牙][呲牙] 3.准备开火🔥:你能想像整个桌子都是烤盘的那种感觉吗?再也不用担心肉🥩放不下啦,我们两个把肉铺满了整个架子,那感觉太爽啦,然后给它们刷上一层油,美滋滋,最后再调两个料,一个干碟,一个蘸料,舒服! 4.甜点:最后吃了点水果,还不错,有西瓜🍉哈密瓜🍈橘子🍊,我家那位还弄了点布丁🍮,非常不错的一顿饭。 俗话说没有十全十美,唯一的不足之处就是坐的不是非常舒服,不过可以省略[调皮],第一次约妹子或者重要约会不是很建议这里,可以给大家推荐别的地方哟! 2020没有一顿美好的烤肉之旅,岂不是遗憾。 以后会不断的给大家推荐石家庄的美食,绝对都是干货

位于江南西路新华书店旁边,因为上午刚新鲜出炉,品种很全,有榴莲菠萝包、网红芒果菠萝包、香芋菠萝包、叉烧菠萝包、咖啡菠萝包等等,当然也有传统港式菠萝包及其他非菠萝包的面包,真想每一款都来一个。😆[色]😋 √芒果冰淇淋菠萝包的雪球是现点现装的,而且要马上吃不然拿回去就融化啦,先用勺子挖几口冰淇淋芒果味浓郁有果肉,再连酥皮面包及冰淇淋一口咬下去,很过瘾! √芒果菠萝包酥皮够脆,🥭芒果肉好大块,新鲜香甜,再搭配奶油夹心,超满足! √蒜你狠乳酪包像开花的形状,很好掰开,蒜香味的面包加上乳酪夹心,好吃停不下来! #面包 #食在江南西 #面包店 #好吃的菠萝包 #菠萝包 #广州

推荐阅读

回归大自然平淡生活|越南木屋设计

💡这座名为Hachi Lily的小木屋住宅设计坐落在一个柚子村庄里,被一条美丽的蜿蜒的河流环绕,然后流向顺化(越南中部的一个旅游城市)的中心,它被建造成平房,以满足业主创造“静修”的梦想。 💡一家人(从喧闹的大城市回来)可以在满是柚子花的花园里享受私密和新鲜的氛围。这也是属于他们的一个基地,供这家人照看一个寄宿家庭项目,这个项目也将在柚木花园里建造,作为他们自己的项目。 💡这座115平方米的住宅由一个公共区域、两间卧室、两间卫生间及其周围空间组成。公共区域包括起居、用餐区和小厨房,连接着沿着主建筑fagade的阳台,面对着房子前面的睡莲池塘。 💡有一座横跨池塘的小木桥作为主要通道。两间卧室和卫生间通过环绕的天然石墙提供了隐私和平静的氛围,为每个空间创造了内部花园。室外淋浴是每个内部花园的有趣特征。 💡屋顶天窗旁的木阁楼是这家人的书房和储藏室。在小窗边看书,欣赏窗下的柚子花园,是一件很有趣的事。住宅的所有空间都被一个大的斜屋顶覆盖,这确保了遮挡,并有助于适应场地的热带气候,这里在夏季总是充满了强烈的阳光,而在冬季则是持续的大雨。 💡房屋的家具、主框架和墙壁都是由回收的木材制成,这些木材是从旧建筑的结构中收集而来的。不同类型的石头,木材,混凝土,玻璃,陶土,纺织品,水,绿色植物..创造了一个好的调色板。 [玫瑰][玫瑰][玫瑰][玫瑰][玫瑰] 别墅装修!别墅设计! 豪宅装修!豪宅设计! 别墅整装!全案设计!

大哥养的猪
3003
12
回归大自然平淡生活|越南木屋设计

传统厨房已经OUT啦,“餐厨一体化”正流行!

随着时代的发展,局限在狭小的空间内做饭、就餐,已经不能满足现代人的需求。很多人希望这两个空间能带给我们不一样的品质生活。现在只需要打通一面墙,这种更高级的厨房和就餐生活,即刻就能拥有,赶紧来看看吧! 餐厨一体化的形式很适合小户型。因为小户型面积有限,一旦用实体墙把餐厅和厨房划分开,无论是做饭还是吃饭,都会感觉很压抑。这时候打通墙面,就能大大提高空间的利用率,解决空间不足的问题。 餐厨一体化的设计,餐桌更贴近厨房,一些摘菜、洗菜、放盘等工作都可以在餐桌上完成,做好的菜肴也能立即端上餐桌,更好的节省了灶台空间。 传统的厨房设计,让厨房的空间过于狭窄,只容得下一个人忙活,别人想插手都难。餐厨一体的设计,有充足的空间让家人坐在餐桌边聊天和帮忙,从此烹饪更加有乐趣。 半开放式的餐厨一体化设计,比较适合中小户型的厨房,往往吧台和厨房连在一起,便捷还能更时尚。如果家里家庭成员不多,也不需要经常招待客人的话,一个与橱柜台面相连的吧台就足够了,它省去了传统餐桌,最大限度地为我们节省空间。

装修也疯狂
9427
99
传统厨房已经OUT啦,“餐厨一体化”正流行!

小户型必备一门到顶极简定制柜 高级又耐看

👉🏻这位业主家客厅整个空间以简约的灰白木色格调为主,沿着客厅最长墙面定制整面通顶定制柜,遵循“七分藏三分露”原则,恰到好处的开放格设计,达到极佳的视觉平衡和审美感受。 👉🏻中间开放格区域用极简马赛克方格,和格栅肌理元素组合打破整体白色柜体的单调感,不同于日常随手放置出门小物件,还能在开放格放置装饰物装点客厅空间。 👉🏻如果家里客厅面积不算小,可以像屋主家一样,做这种顶天立地的功能性电视柜。 👉🏻一来增加家里强大的储物空间,二来这种柜子具有墙面效果,柜子看起来又薄又轻盈,空荡荡的客厅反而更显大更气派。 👉🏻顺便说一下,业主家的极简风格,做到了以白、灰、木为主,整个房间不超过三种主色调,木地板最好以浅色系大板无缝直拼为主,更容易出彩。

闫小匠
4507
68
小户型必备一门到顶极简定制柜 高级又耐看

只有可以漫步的异形立面

🍁该公寓的改造引领着生活方式的改变。 🌸设计师根据屋主的生活习惯,为该公寓打造了基于人体工学的休闲区,日常区,充满阳光且宽敞的共享空间,分散房间的景观,造型别致的厨房和利用隔断打造的储物空间。在这个房间中,没有空中,只有可以漫步的异形立面。 👼隐藏在空间造型中的储藏空间。 🎈空间中的“空中”是可以走上去的台阶。 🌟如果你喜欢的话,请记得点赞收藏哦~🌟

叶尊叶MM
3302
89
只有可以漫步的异形立面

装修指南 | 如何防止卫生间潮湿发霉

梅雨季节开窗通风,卫生间反而更加潮湿了,这是为什么? 我们知道,卫生间潮湿、发霉,多半是通风不良引起的,为了加强通风换气,我们都会在卫生间上方安装排风扇。但排风扇也不是万能的,尤其是我们就要迎接马上要到来的梅雨季节,你是不是还对卫生间通气效果有以下误解呢~让小筑为您“辟谣”! 1、“洗完澡后应该立刻开窗通风”错[弱][弱][弱] 辟谣:洗完澡后立刻打开门窗并不会使卫生间的通风变好,反而会降低排风扇的吸力,影响换气效果。正确的换气方式应该是关闭窗户,从门的地步缝隙进风,利用风压将潮湿的空气送到排气扇的位置,可以更快地更换卫生间的空气。 2、“水汽没有了就可以关闭排风扇了”错[弱][弱][弱] 辟谣:虽然换气一段时间后从肉眼看卫生间已经干了,单瓷砖缝隙、马桶、洗面台的结合处等看不见的地方还是有很多残留的水分,这也是浴室接缝处容易发霉的原因。所以要适当延长换气扇的排风时间,等卫生间瓷砖缝隙中的水分彻底干透再关闭。 3、“明卫比暗卫不容易潮湿发霉”错[弱][弱][弱] 辟谣:因为开窗通风对卫生间的换气作用不大,所以有窗和没有窗的卫生间空气湿度是一样的。但相比于墙壁,窗户周边的温度较低,热水汽容易凝结在窗户周边,形成结露,并且很难被排出,久而久之就会发现玻璃和窗框上有霉菌。所以在明卫的装修选材时,要尽量选择断桥铝窗和暖风机,可以缓解结露的问题。 我们是专业的设计家装服务团队,帮您从开始解决装修中的困扰,需要可以关注筑道小杨不迷路

筑道YOUNG设计
4512
62
装修指南 | 如何防止卫生间潮湿发霉

140平米精装房改造,花10万竟然装修成这样

「高老庄工长俱乐部·一站式装修」 业主是90后比较喜欢法式再加点轻奢风格,也比较喜欢粉嫩的颜色撞色,然后后期方案定位我们走的是偏轻奢混搭的方向,颜色选着在绿色中同色系撞色,局部点缀橙色。 🏘房屋信息 面积:140㎡ 坐标:北京 户型:三居 费用:35万 ✅改造亮点: 1️⃣餐厅在原来的基础上增加了西厨,餐桌选用吧台和餐桌一体式; 2️⃣主卧用粉色和灰色撞色,满足女业主的少女心,墙上雕花线条和石材壁炉增加法式复古造型,选用现代造型的床和椅子形成混搭感; 3️⃣次卧是偶尔客人来住,加高与原来飘窗一样高形成榻榻米,增加储物功能墙纸选择绿色叶子,增加清新自然感,绿色柜子加上床头软包和床品,在空间形成同色系色彩层次搭配,再用金属画框和灯具点缀。整个空间颜色与客厅主调颜色呼应。

高工长装修改造
2915
27
140平米精装房改造,花10万竟然装修成这样

墙面翻新,三招就够了!

👨🏻‍🍳👮🏻‍♂️ 每一道菜都能保持美味的厨师 每一次指挥都不会出错的交警 ……   他们的专业从何而来? 熟能生巧!   在立邦 刷新服务 每一位为大家服务的刷新小哥 都深谙熟能生巧的道理 就像金庸笔下的杨过大侠 重剑无锋,大巧无工 真正的技艺不仅靠神兵利器,更是个人的修行   ✔️“刷新三式” 技能解析   🧰 墙面好不好?专业验收来判断!   制定不同的墙面施工方案 需要不同的验收方式 立邦刷新服务的八大验收标准 涵盖多种方案的验收方式 让每一位用户都能轻松直观地 了解如何验收一面好墙 再也不为刷新墙面烦恼   🤔 懂得刷新方式,更懂用户所想   一年四季,一日三餐,一屋两人 每日出入的小家,更需要细致对待 无论是立邦产品的选择 抑或刷新环境的整洁保质 以及用户后续生活的健康考量 没有一处,容得下马虎对待 立邦刷新服务 始终秉承不让你动手的原则 为用户打造出理想环境   👨🏻‍🎓 专业的刷新,需要系统的学习 每一次刷新服务 除了使用先进优质的刷新工具 背后更包含了刷新小哥们永不停止的学习 立邦刷新服务定期举行员工内部培训及评分 严格规范刷新小哥的专业技能及服务态度 力求让客户从见面的第一刻起 便拥有良好的刷新体验   对于墙面刷新 有人首要追求速度 有人希望更加美观   👷🏻‍♂️❣️ 可在立邦刷新服务 美观和效率都为你奉上 也许有些“贪心” 只为给你“走心”的生活点滴

立邦刷新服务
1052
56
墙面翻新,三招就够了!

今日分享现在三居室,轻奢有格调

玄关,鞋柜与换鞋凳结合一体,下方留空15cm用来收纳室内拖鞋,中间留空40cm方便收纳钥匙和包包,地面铺贴六角砖划分区域 客厅以浅灰色为基调,搭配丰富的软装布置,整体柔和而恬静 灰色背景墙用石膏线勾勒造型,金属玻璃材质茶几与边几点缀轻奢质感 毛绒大象凳趣味十足 实木电视柜点缀金色线条与把手,角落的大株绿植增添自然气息 客厅局部 在过道设计黑板墙,两位业主都是数学系毕业,黑板墙上是学霸式的浪漫 餐厅延续客厅整体风格,现代装饰画搭配多头吊灯 餐桌小景 餐厅望向客厅,南北通透 次卧,浅灰色空间布置深棕色实木高背床,点缀一盏白色羽毛吊灯 主卧,拼色背景墙勾勒精致法式线条,利用飘窗一侧内嵌开放式书架,成为休憩一角 卫生间,灰色瓷砖墙地一体,加长镜柜留出一排置物格更加实用。

住范儿一站式家装颜值革命
3782
33
今日分享现在三居室,轻奢有格调