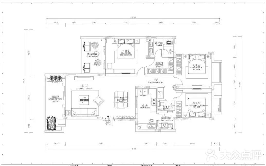
这套120平米的房子,整个房子以简洁的硬装空间,搭配上自然的木质家具,在活泼跳跃的色彩软装搭配下,营造出一个清新舒适的空间,令人感觉温馨而又浪漫惬意。
![[糖果]](https://img.meituan.net/ugcpic/1829f19bd7c570b15cbc80891af0ec182106.png)
![[糖果]](https://img.meituan.net/ugcpic/1829f19bd7c570b15cbc80891af0ec182106.png)
![[糖果]](https://img.meituan.net/ugcpic/1829f19bd7c570b15cbc80891af0ec182106.png)
![[糖果]](https://img.meituan.net/ugcpic/1829f19bd7c570b15cbc80891af0ec182106.png)
![[糖果]](https://img.meituan.net/ugcpic/1829f19bd7c570b15cbc80891af0ec182106.png)
![[糖果]](https://img.meituan.net/ugcpic/1829f19bd7c570b15cbc80891af0ec182106.png)
▲客厅在淡蓝色的墙面基调下,整体简约大方的空间,舒适的软装家具里加入黄色的的点缀,营造出清新活力的氛围,给人以温馨舒适的感受。
▲灰色布艺沙发,搭配木质椭圆小茶几,还有舒适的地毯,电视墙。白、黄、灰色的组合,也为空间带来了独特的温馨感。
▲餐厅在大门旁边,餐边柜与鞋柜组合的定制柜,简洁的元木质餐桌,让餐厅自然清新好惬意。
▲餐桌上精致的布置,顶上三盏吊灯,营造出一个轻松舒适的用餐氛围。
▲厨房以浅灰地砖+白色小砖墙面,一字型的操作台,雅白的橱柜,在侧边的墙面还加入了实用的厨具纳架,整体空间简洁而又文艺实用。
▲一字型的操作台,动线连贯,一气呵成。
▲主卧床头墙是淡粉色的,侧边墙面则是浅灰色,搭配木质床与简约的床单,整个空间充满了舒适自然的气息。
▲窗帘加入了蓝色、粉色与纱帘,撞色的软装,为空间带来更加优雅端庄的气质感。
▲独立小衣帽间,也为主人提供了丰富实用的衣物储藏空间。
▲老人房以奶咖色墙面,整体简洁的布置,带来了一个轻松舒适的睡眠空间。
▲卫生间以白色大理石质感墙面,搭配简约灰色调的地面,整体白色的洗手盆柜,搭配一个圆形的金属框镜子,整体显得优雅精致而档次。










































